Houses
Gaia Energy intends to be a different kind of homebuilder. We offer bespoke modular designed houses utilising Insulated Concrete Forms (ICF) making them highly energy efficient, cost effective and durable. We aim to deliver and exceed the Government’s new Environment Bill requiring developers to deliver a net biodiversity gain of at least 10% on housing schemes by incorporating living green walls into the designs.
We are dedicated to changing housing for the better by giving customers greater choice. Our mission is to enable people to become more self-sufficient in both food and energy production. We aim to adopt a holistic approach to house building which allows people to generate their own power (solar), grow their own fresh produce (vertical gardens), whilst also incorporating biodiversity (living walls).
Gaia Energy offers a ‘one stop shop’ service from design to completion of your new home. Our ‘Turnkey’ service will take care of planning, construction and fit out giving you peace of mind. All our 2, 3 and 4 bed houses have a fixed price which is agreed upfront. This fixed cost is for the house to be fully delivered and ready to move into (except the kitchen). We also offer customers the option of a ‘shell only’ price should they wish to fit out the house themselves.
Key features of the houses
- Use of insulated concrete formwork (ICF) offers highly energy efficient and well insulated designs. Both quick to construct and offering superior levels of performance over traditional/alternative methods of building envelope construction.
- Modular designs are cheaper to build and allow for innovation, in-keeping with the latest developments.
- Mechanical ventilation with heat recovery (MVHR) system reduces energy bills by up to 90%.
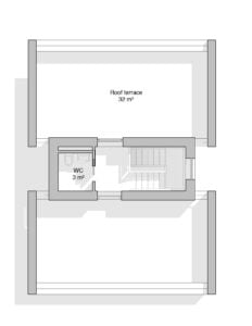
- Living walls/roof gardens to incorporate biodiversity into the design as well as adding additional recreational space.
- Use of solar thermal panels/photovoltaic cells reduce reliance on the energy grid.
- Use of solar thermal panels/photovoltaic cells reduce reliance on the energy grid.
- Internal vertical gardens enabling people to supplement their diets with home grown food.
- Rainwater harvesting
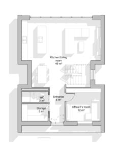
Three bed House
from £330,000 ‘Turnkey’
or £120,000 ‘Shell only’.




